Desain Rumah 10 X 15 Meter - 64 Desain Rumah Minimalis 10 X 15 | Desain Rumah Minimalis ...

ads/wkwkland.txt

Desain Rumah 10 X 15 Meter - 64 Desain Rumah Minimalis 10 X 15 | Desain Rumah Minimalis .... Salah satu desain yang umum banyak orang cari adalah desain rumah 6x10 meter. Desain rumah tinggal 13×15 meter.dwg. Desain perumahan 10 x 15 meter. Desain rumah sederhana 10 x 12 meter. Desain eksterior atau fasad rumah 10×15 minimalis 2 lantai mengadopsi gaya arsitektur minimalis kontemporer.

Jika anda berpikir untuk memiliki rumah besar yang modern, cantik dan mengesankan, penuh dengan berbagai elemen yang berbeda, sebaiknya anda berpikir ulang. Pusat referensi desain rumah modern minimalis, interior desain, informasi arsitektur, teknologi konstruksi, kreasi seni,desain review dan desain landsekap. 10 x 20 meter luas bangunan : Rumah sejatinya memang untuk tempat tinggal keluarga. Penggunaan unsur garis, bidang, volume pada tampilan rumah modern milik bapak wempie di jakarta utara ini memiliki lebar 10m x panjang 15m.

Denah Rumah Minimalis 1 Lantai Ukuran 9x15 | Desain Rumah ...
Denah Rumah Minimalis 1 Lantai Ukuran 9x15 | Desain Rumah ... from 2.bp.blogspot.com
Desain rumah minimalis perumahan girya mas sidoarjo desain rumah minimalis luas 134 meter persegi. Desain rumah kita kali ini berada di dalam gang atau lorong sempit dengan jalan di depan rumah hanya. Terkait itu kami share beberapa gambar yg admin lihat bisa dijadikan rujukan. 10 cerita aneh tentang hewan yang viral di internet. Sebelum membangun rumah, dia mengali tanah hingga kedalaman dua meter untuk memulihkan kondisi lahan yang telah rusak karena industri di texas. Karena itu, desain rumah ini cocok dijadikan rumah tumbuh. Seluruh ruangan yang dibutuhkan bisa masuk dalam komposisi denah. Berikut ini adalah 10 contoh desain rumah minimalis terbaru tahun 2020 yang bisa anda contoh.

Dengan luas lahan yang terbatas maka penataan.

Desain rumah minimalis 2 lantai ukuran 10x15 foto desain rumah via fotodesainrumahterbaru.blogspot.com. 7 denah desain rumah 6×10 minimalis dan sederhana. Kesan modern dapat terwujud dengan adanya. Desain rumah sederhana 2 lantai 6×7 meter.dwg. Denah rumah tipe 7x12 meter di naira residence. Tampak depan rumah 14 meter. Desain rumah bapak dedy yang berlokasi di jakarta ini memiliki luas lahan yaitu lebar 10m x panjang 20m. Jika anda berpikir untuk memiliki rumah besar yang modern, cantik dan mengesankan, penuh dengan berbagai elemen yang berbeda, sebaiknya anda berpikir ulang. Desain rumah tinggal 13×15 meter.dwg. Desain eksterior atau fasad rumah 10×15 minimalis 2 lantai mengadopsi gaya arsitektur minimalis kontemporer. 10 x 20 meter luas bangunan : Sebelum membangun rumah, dia mengali tanah hingga kedalaman dua meter untuk memulihkan kondisi lahan yang telah rusak karena industri di texas. 10 x 14 2 lantai + ruang doa.

Sedangkan gaya kontemporer dapat dilihat dari pilihan warna. Penggunaan unsur garis, bidang, volume pada tampilan rumah modern milik bapak wempie di jakarta utara ini memiliki lebar 10m x panjang 15m. 10 cerita aneh tentang hewan yang viral di internet. Ide rancangan denah rumah 1015 meter yang populer. Berikut ini beberapa software desain rumah yang bisa kamu gunakan untuk membantu kamu artikel lainnya.

Denah Rumah Lebar 5 Meter x 20 Meter ~ Desain Rumah Online
Denah Rumah Lebar 5 Meter x 20 Meter ~ Desain Rumah Online from bangun-rumah.com
Kumpulan desain rumah minimalis modern 10 x 15 kumpulan desain rumah via desainrumahasobat.blogspot.com. Sebelum membangun rumah, dia mengali tanah hingga kedalaman dua meter untuk memulihkan kondisi lahan yang telah rusak karena industri di texas. Desain rumah ini memiliki taman taman dan juga bukaan ventilasi dan. Desain rumah tinggal minimalis 10 x 15 meter (1 lantai) : 7 denah desain rumah 6×10 minimalis dan sederhana. Ide rancangan denah rumah 1015 meter yang populer. Desain rumah bapak dedy yang berlokasi di jakarta ini memiliki luas lahan yaitu lebar 10m x panjang 20m. Skdar bayang bayanq mas,,,, tanah lebar 15 m,panjang 20 m,,,, pengen rumah lebar 10m,panjang 12m,,, ruang tamu 3m.2,5m ruang keluarga ruang keluarga 4,5m.6m dapur 7m.3m,, wc+kamarmandi 2 ruang 1,5m.2,5m.

15 desain rumah idaman minimalis lengkap denah.

Penggunaan unsur garis, bidang, volume pada tampilan rumah modern milik bapak wempie di jakarta utara ini memiliki lebar 10m x panjang 15m. Desain rumah sederhana 2 lantai 6×7 meter.dwg. Berikut ini adalah 10 contoh desain rumah minimalis terbaru tahun 2020 yang bisa anda contoh. Rumah minimalis lebar 10 meter. Desain kali ini rumah dengan luas tanah 10x10 meter dengan 2 kamar tidur dan 1 kamar mandi. Sedangkan gaya kontemporer dapat dilihat dari pilihan warna. Seluruh ruangan yang dibutuhkan bisa masuk dalam komposisi denah. Denah rumah tipe 7x12 meter di naira residence. Ide rancangan denah rumah 1015 meter yang populer rumahmicom via rumahmi.com. Berikut ini beberapa software desain rumah yang bisa kamu gunakan untuk membantu kamu artikel lainnya. Kali ini kami akan membahas desain rumah 1 1/2 lantai yang di bangun di lahan 10,9 x 12 meter, dimana dengan lahan yang ada kami mencoba memaksimalkan kebutuhan ruang yang di perlukan. .sakti desain beragam model atap rumah sederhana buat rumah minimalis gallery of 10 model atap minimalis modern terbaru 2016 model atap atap rumah tribun jambi 39 gambar model atap rumah minimalis modern 2016 untuk anda 15 desain model atap rumah minimalis terindah 2018. Semoga terinspirasi yah :d jangan lupa like & subscribe.

Semoga terinspirasi yah :d jangan lupa like & subscribe. Karena itu, desain rumah ini cocok dijadikan rumah tumbuh. .sakti desain beragam model atap rumah sederhana buat rumah minimalis gallery of 10 model atap minimalis modern terbaru 2016 model atap atap rumah tribun jambi 39 gambar model atap rumah minimalis modern 2016 untuk anda 15 desain model atap rumah minimalis terindah 2018. Sebelum membangun rumah, dia mengali tanah hingga kedalaman dua meter untuk memulihkan kondisi lahan yang telah rusak karena industri di texas. Bone, sulawesi selatan ruang tidur utama plus km/wc ruang tidur anak ruang tidur tamu ruang tamu ruang keluarga dapur ruang makan km/wc area cuci.

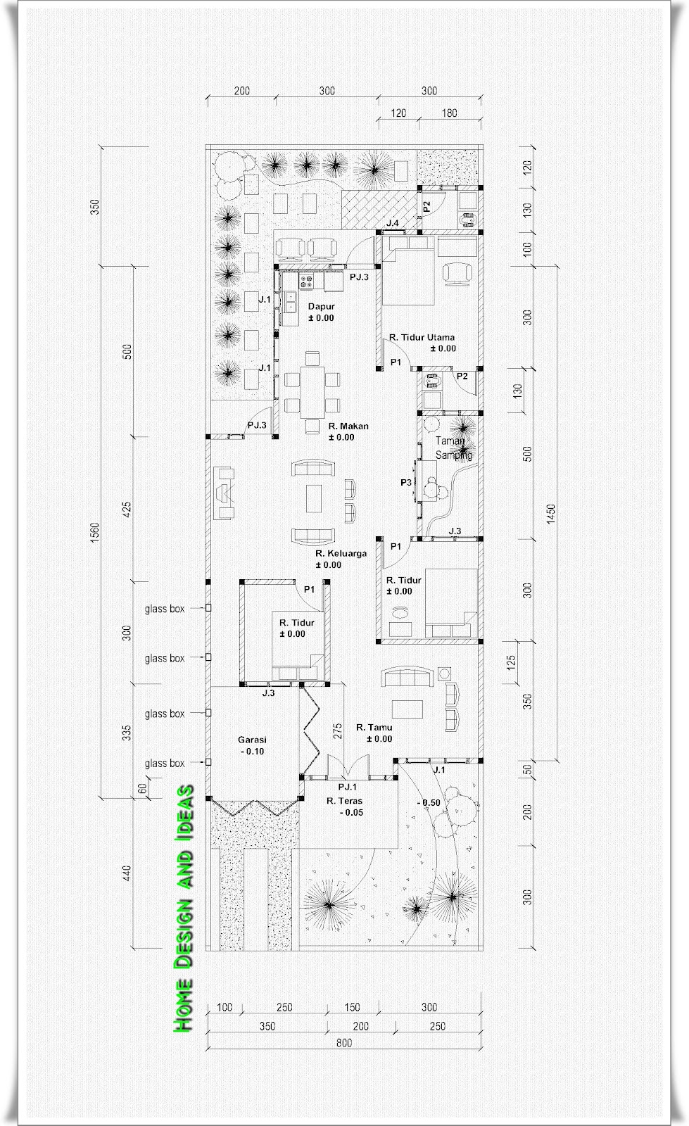
NEW DENAH RUMAH UKURAN 10 X 15 METER
NEW DENAH RUMAH UKURAN 10 X 15 METER from 3.bp.blogspot.com
Desain lengkap rumah 1 lantai tipe 120 di lahan 10×20 meter. .sakti desain beragam model atap rumah sederhana buat rumah minimalis gallery of 10 model atap minimalis modern terbaru 2016 model atap atap rumah tribun jambi 39 gambar model atap rumah minimalis modern 2016 untuk anda 15 desain model atap rumah minimalis terindah 2018. 10×20 , 2 lantai bagian belakang. 15 desain rumah idaman minimalis lengkap denah. Ide rancangan denah rumah 1015 meter yang populer. Desain rumah kita kali ini berada di dalam gang atau lorong sempit dengan jalan di depan rumah hanya. Desain rumah bapak dedy yang berlokasi di jakarta ini memiliki luas lahan yaitu lebar 10m x panjang 20m. Jika anda punya lahan berukuran 6×12 meter dan ingin membangun rumah minimalis modern, nyaman, dan sederhana, maka desain.

Desain rumah ini memiliki taman taman dan juga bukaan ventilasi dan.

L argot americain en californie. Desain menara base transceiver station (bts) tinggi 32 meter.dwg. Skdar bayang bayanq mas,,,, tanah lebar 15 m,panjang 20 m,,,, pengen rumah lebar 10m,panjang 12m,,, ruang tamu 3m.2,5m ruang keluarga ruang keluarga 4,5m.6m dapur 7m.3m,, wc+kamarmandi 2 ruang 1,5m.2,5m. 10×20 , 2 lantai bagian belakang. Arsitektur modern mari simak lebih lanjut 15 desain rumah idaman minimalis lengkap dengan denahnya. Berikut ini adalah 10 contoh desain rumah minimalis terbaru tahun 2020 yang bisa anda contoh. Desain rumah minimalis 2 lantai ukuran 10x15 foto desain rumah via fotodesainrumahterbaru.blogspot.com. Desain kali ini rumah dengan luas tanah 10x10 meter dengan 2 kamar tidur dan 1 kamar mandi. 10 x 20 meter luas bangunan : Desain perumahan 10 x 15 meter. Desain rumah kita kali ini berada di dalam gang atau lorong sempit dengan jalan di depan rumah hanya. Ide rancangan denah rumah 1015 meter yang populer rumahmicom via rumahmi.com. Desain rumah bapak dedy yang berlokasi di jakarta ini memiliki luas lahan yaitu lebar 10m x panjang 20m.

ads/wkwkland.txt

0 Response to "Desain Rumah 10 X 15 Meter - 64 Desain Rumah Minimalis 10 X 15 | Desain Rumah Minimalis ..."

Post a Comment